
Стальные конструкционные желоба являются важнейшим компонентом системы дренажа крыши здания. Их основная функция - собирать дождевую воду с крыши, направить ее в вертикальные трубы, а затем разряжать ее в дренажную систему наружного дренажа, не давая ей непосредственно разрушать стены или замачивание фундаментов. Конструкция и установка продукта Liweiyuan характеризуются высокой прочностью и легким весом, обеспечивая гладкий дренаж и исключительную долговечность.
Стальные конструкционные желоба являются важнейшим компонентом системы дренажа крыши здания. Их основная функция - собирать дождевую воду с крыши, направить ее в вертикальные трубы, а затем разряжать ее в дренажную систему наружного дренажа, не давая ей непосредственно разрушать стены или замачивание фундаментов. Конструкция и установка продукта Liweiyuan характеризуются высокой прочностью и легким весом, обеспечивая гладкий дренаж и исключительную долговечность.
Стальная конструкция Liweiyuan состоит из коррозионных и устойчивых к воздействию материалов.
Наш продукт предназначен для горячих оцинкованных, предлагающих превосходную коррозионную стойкость, низкую стоимость и длительный срок службы. Доступно по толщине 1,5-2,5 мм, он подходит для большинства применений.
Изготовленный из нержавеющей стали, этот продукт обеспечивает коррозионную стойкость и особенно подходит для прибрежной или влажной среды. Доступный по толщине 1,0-2,0 мм, он предлагает более высокую цену, но длительный срок службы.
Наши стальные продукты с цветом основаны на оцинкованной стали, покрытой метеорологическим покрытием, таким как полиэфир или флуоруглеры, как для коррозионной устойчивости, так и для декоративных эффектов. Доступные по толщине 1,2-2,0 мм, они подходят для зданий, требующих высокого уровня эстетической привлекательности.
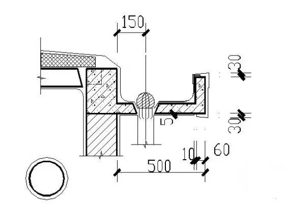
Структурная форма стальной конструкционной желоба должна быть адаптирована к склону крыши и дизайну карниза. Общие типы включают U-образную и V-образную форму. Процесс установки выглядит следующим образом:
Наши стальные конструкционные желоба используют угловые кронштейны -водосточные кронштейны, чтобы привлечь их к лучей или пурлинов стальной конструкции. Расстояние между кронштейнами составляет 600-1000 мм, чтобы обеспечить равномерное распределение напряжений по всем канату.
Готовые желоба предварительно размером и подключены на месте с использованием разъемов или сварки. Герметик требуется на соединении между желобом и настилкой на крыше.
Мы можем установить мигание над настилом крыши. Нижний конец желоба должен быть расположен ниже настила крыши и запечатан герметом. Сливные отверстия должны быть предоставлены на дне желоба, в первую очередь для подключения к подъемам дождевой воды.
Наш производственный процесс из стальной конструкции включает в себя резку в соответствии с размерами чертежа, изгибом, рисованием, проверкой готового продукта, упаковке и доставке. Стальные водосточные желоба Liweiyuan разработаны и устанавливаются для обеспечения коррозионной стойкости, плавного дренажа и долговечности, обеспечивая эффективный дренаж.